中航城110m2北歐風實景丨單純、可愛的小清新,誰不愛呢

【項目樓盤】中航城
【項目面積】110m²
【設計風格】北歐風格
【本期業主】李先生一家
【 設計師 】楊燿華
【項目經理】廖明

如果說裝修是一段創造生活方式的過程,那么北歐風格的裝修則是一部“逃離都市計劃”,回歸本真,讓生活展現最本真的模樣。

業主李先生一家,和美的夫妻倆和一個可愛的小孩,溫馨甜蜜的一家人對自己的新家充滿了期待和想象,想要在昆明這座街頭巷尾散發著陽光味道的城市里,找到一種承載幸福的生活方式。
從買房到裝修,李先生一直都十分慎重,對于家的想象,李先生想的是:溫馨、簡約、干凈。
當這套北歐風的裝修從效果圖落地成實景時,李先生腦海中的理想家,在這里找到了答案。
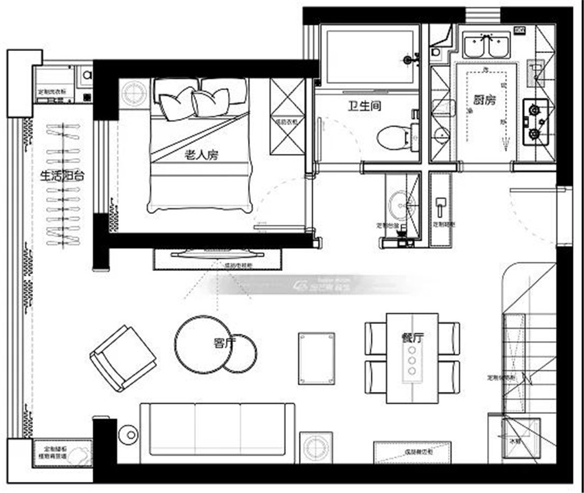
平面布置
— The huose type

一樓

二樓
玄關
— House entry
一進門,簡約大方的玄關在輔助光源的加持下呈現溫馨慵懶的家居氛圍,隨手放下手中的瑣碎,就此將繁雜隔離在外。

客廳
— Living room
當初選定設計風格的時候,李先生一家首選北歐風格,喜歡簡單的人和事,裝修也一樣。


淡淡的藍色,如清風過境,如飛鳥入林,撲面而來的清新感,仿佛讓人找到了一種與自然和諧相處的方式。


對于顏色的選調,是李先生比較滿意的點,把外界區隔開來,這里是完全屬于一家人的愜意天地。家,本該如此。

當清晨的陽光和夏日的微風撫過飄動的白色紗簾,悄然的溜進來,家就變得充盈而生動了。


清新純凈的藍,總是能帶給人安定人心的力量,留給人更多想象的空間。
慵懶的布藝沙發,是家居搭配里的寶藏,容納下傍晚疲憊的身軀,治愈深夜里沉寂的靈魂,以及見證一家人電視機前的幸福時刻。

紅色的抱枕,帶來活潑的亮色,讓空間變得更加豐富。

餐廳
— Dining room
開闊的空間,讓客廳和餐廳互動感變得更強,吃完飯在沙發上小憩,都是觸手可及的幸福感。

利用樓梯的空間做餐邊柜,空間利用更加合理。


廚房
— Kitchen
白色的廚房可以在視覺上起到開闊空間的作用,設計師為李先生一家選用的都是有質感、容易清潔打理的材質,既讓空間明亮溫馨有格調,又避免了難以打理的尷尬。

樓梯
— stair
玻璃扶手不會讓空間顯得狹小,增加靈動性。木地板和簡約的藍色墻體的結合,是不是溫馨感滿滿呢?這是獨屬于私密空間的輕松、自由感。裝飾畫的加入增加了清新、可愛的味道。


臥室
— master bedroom
主臥室也是柔柔的北歐風,但區別于客廳清新的色調,臥室選用的是充滿暖意的顏色,整體搭配木質的地板,呈現氣質、暖意融融的感覺。

床頭運用深淺不一的相近色系打造出豐富的空間層次,避免單調。精致的圓形燈飾,為空間注入夢幻、寧靜的溫柔氣質。


飄窗是女主人鐘愛的地方,不得不說高層的優勢就是無敵的陽光。在上面看書、擼貓,亦或畫一個精致的妝容,心情都是美美噠。

兒童房
— Children room
擁有一個和別的小朋友一樣酷酷的臥室,設計師幫小寶貝規劃到了。采光良好的飄窗既可以是小朋友的玩耍區域,也可以是學習區域。充滿個性的吊燈,酷酷的裝飾畫,這下,我們也擁有和別人一樣酷酷的臥室啦。


對于實景的落地,李先生滿足了自己對于家的設想,一家人呆在喜歡的地方,度過漫漫的一年又一年,沒有什么是比這更重要的了。

微信公眾號 | 金芒果裝飾
新浪微博 | 云南金芒果裝飾
金芒果官網 | www.ssyuanlin.cn
公司地址 | 官渡區昌宏西路1888號
服務熱線丨0871-63118888


