潤城五區136m2輕奢風格裝修丨只一眼,便墜入到優雅的藍色暢想里

輕奢風格裝修
區別于現代簡約風格與歐式奢華風格
除了外表的奢華
它更注重品質細節和設計感
宣揚生活就應該純粹和享受
過度的奢華不免讓人產生距離感
而對于想要品質的儀式感業主來說
現代輕奢風格也許可以滿足
今天推薦的是潤城五區一套136m²的現代輕奢住宅,設計師運用大膽配色增加空間明艷度,整體精致時尚,從舒適度出發,為業主打造奢而不膩的品質生活。
項目樓盤:潤城
項目面積:136m²
設計風格:輕奢風格
設計師:張正川

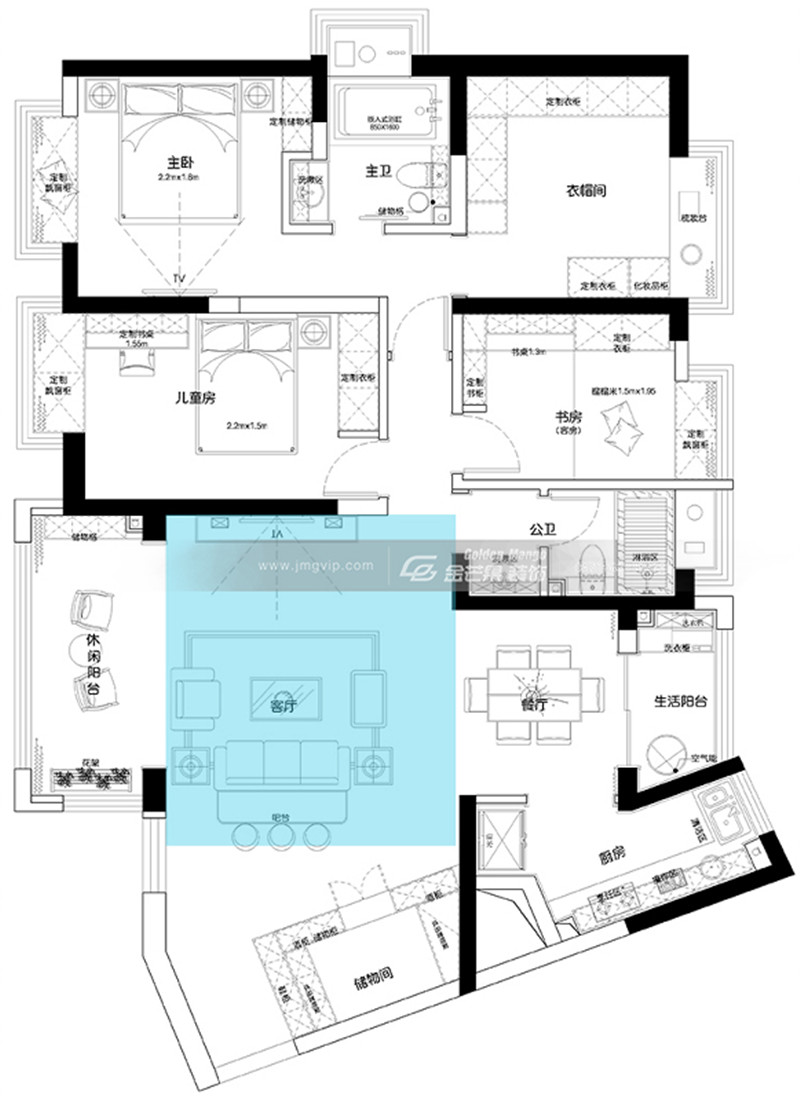
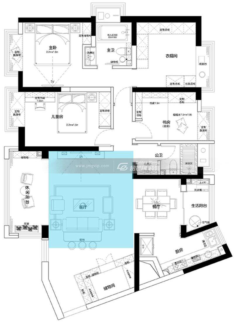
平面布置

案例賞析
客廳/看慣奢華,仍覺得家是浪漫的模樣

象牙白的經典配色,奢華感不言而喻,金色線條吊頂,邂逅一曲華麗的金色戀歌。
墨藍的沙發,神秘而又優雅,讓視覺有了重心,不免讓人沉浸在優雅的藍色暢想里。

紅色系的皮革遇上墨藍色的絲絨,復古亮眼的配色,引你進入到一個浪漫、精致的摩登時代。


條紋地毯,讓空間層次感更佳,繁與簡的碰撞,展現一個華麗但不煩膩的品質空間。


白色吧臺、酒柜,通透的玻璃營造出器物模糊的紋理,光影變幻之間,高級感彰顯。
大理石吧臺觸手冰涼的質感,一杯醇香的美酒,一段輾轉的故事,杯影倒映出的,是家的儀式感與精致感。
餐廳/一餐一食,皆是家的韻味所在

藍色的優雅、紅色的熱情,既是和客廳的呼應,又增添許多時尚。
金屬元素的加入,展現精致與高級感。白色落地窗簾,微風輕輕吹動,奢而不膩的美好展現。
兒童房/童年的紙飛機,飛到了未來的手里

仰頭看云過,手可摘星辰。讓可愛的小熊伙伴陪我入眠,將月亮放在枕邊,觸手可及的美好,溫暖我整個童年。
靚麗活潑的顏色,良好的功能分區,賦予兒童房更加美好活潑的模樣。
臥室/陷入香沉的夢里,那個夢,和溫柔、浪漫有關

低調的配色,但氣質并不低調,溫柔舒適的夜里,身邊的一切被愜意包裹,白色的優雅與沉靜展現的淋漓盡致。圓形鏡面裝飾,是視覺的延伸,亦是藝術的展現。


