家里這個空間裝好了,就可以“C”位出道
家里這個空間裝好了,就可以“C”位出道
也許是聽慣了江風,也許是看慣了河景,即使獨坐客廳的一隅,也可憑記憶將美景作畫。睡房前的百靈唱響春日,陽臺遠近皆為美景的時光。好的設計與工藝能讓家呼吸起來,功能比漂亮更重要,設計一種生活方式,比所謂的風格更重要。今天為大家帶來銀海泊岸四期145㎡熱門戶型解析及做的設計案例。
裝修樓盤:銀海泊岸-汐望
裝修設計:金芒果裝飾
設計風格:北歐風格
住宅面積:145㎡
設計師: 張正川
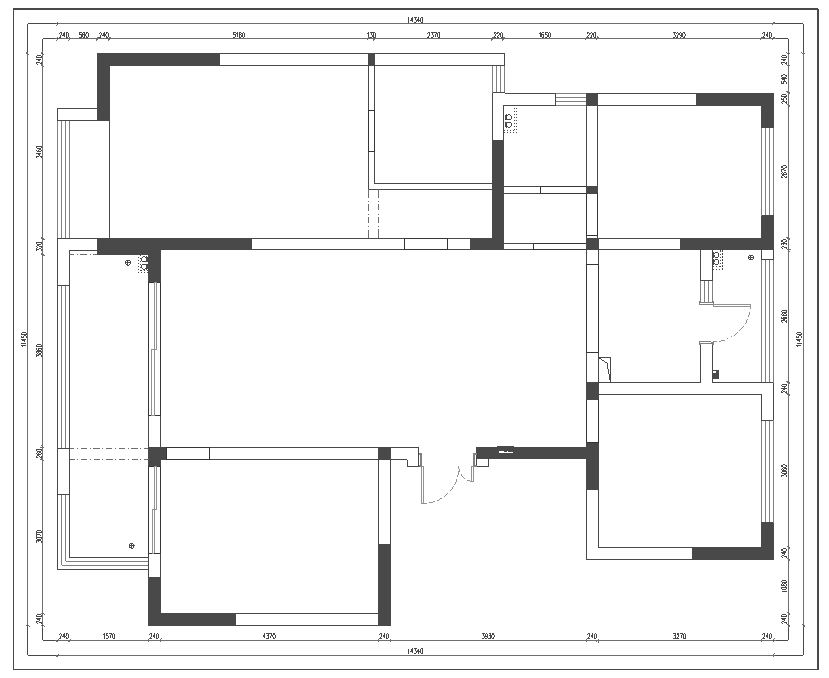
案例原始戶型圖:

戶型優點:
1、餐廳和客廳區域劃格局周正,分區明朗,使用率高,可以滿足日常起居的的動線設計要求。
2、承重墻分布比較合理,戶型的可改 造性大,個性化設計的可塑空間很大。
3、明廚明衛,三面采光,室內光線充足,且空氣可以無阻對流,氣流通暢。
4、次衛干濕分離,非常理想。
5、起居室呈四角獨立分布,減少空間浪費的同時,各個房間的私密性非常高。
6、主臥“套房”足夠大,可以隨心所欲的根據自主喜好進行設計和使用,簡直不要太完美!
7、六米多的大陽臺,足以支撐起你對陽臺的所有美好想象!
8、主臥室配這么大一個飄窗,我不管,我要在上面吃零食,看電影,打游戲,擼貓!
戶型缺點:
1、入戶門對著主臥室門,不夠合理。
2、對于145平米的4室戶型來講,他的廚房空間犧牲的太多啦。
3、生活陽臺現有的格局,分配給我們使用的空間可以說是非常的逼仄狹窄,并不理想。
4、雖然起居室分布相對獨立有空間私密性和獨立性好的優點,但是相反的,也是缺點,如果說保留4個臥室,那么離衛生間遠的兩個房間,日常生活起居是比較苦悶的。
5、4室2衛,如果常住人口多,衛生間使用供應會稍顯吃力。
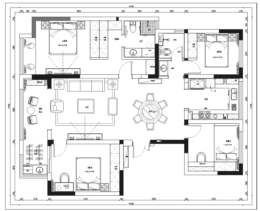
設計師改造后:

1. 入戶位置對臥室門的問題,通過調整主臥室的門洞位置,達到趨利避害的目的,讓入戶第一眼看到的是餐廳背景這一個景。
2.廚房位置擴大,犧牲生活陽臺,這樣可以打造一個最好用的U型櫥柜,并且不顯擁擠,三代人一起共享烹飪的樂趣也是一件美事啦!
3.入戶餐廳放置了大圓桌,人少時候6人坐,人多時候8人坐
4..沒有了獨立的晾曬區,我們把客廳的景觀陽臺從功能使用上一分為二,在相對隱秘的一邊作為生活陽臺來使用,空間足夠,給排水布管也具有先天優勢。
效果圖賞析:







