銀海泊岸|145m2清新·舒適北歐風格裝修案例
今天給大家分享的是北歐風格的家裝案例,設計師從舒適,美觀,實用性出發,為業主量身打造了最適合自己的居住空間,北歐風格的裝修沒有過多冗雜的裝飾和花紋,用一種簡單、直接、功能化且貼近自然的線條來表現其寧靜的北歐風情。
裝修樓盤:銀海泊岸
裝修設計:金芒果裝飾
設計風格:北歐風格
住宅面積:145m²
設計師: 張正川

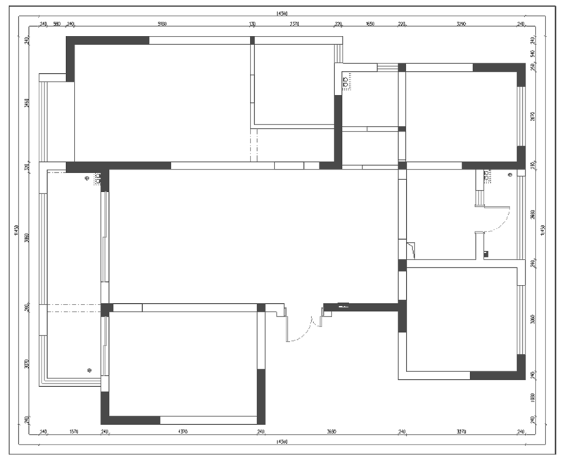
原始戶型圖

優點:戶型方正,區域劃分合理,動靜分明;房間的采光及通風都很好;帶有生活陽臺和獨立的書房。
缺點:入戶門對著主臥門;廚房比較小;沒有獨立的衣帽間。
平面布置圖

設計師改造后:
整個戶型空間沒有做太大的改動,只是平面布置上進行了動線和空間優化,改動如下:
1.將廚房與生活陽臺并為一體,取消了陽臺,擴大了整個廚房的空間。
2.書房設計為半開放式書房空間,既與客廳相連,又相對封閉。
3.主衛空間看起來比較大,些許有點浪費,重新設計后,增加了衣帽柜及梳妝臺的位置。
客廳
客廳的裝修非常小清新,室內墻壁上采用淺綠色的格調,搭配上具有設計感的小茶幾,在軟裝飾品上以鮮艷出挑的色彩為主,使整個客廳的空間顯得非常時尚具有活力。


餐廳
廚房與餐廳相連,廚房屬于典型的U型設計,白色的櫥柜呈U型擺放安裝,再搭配一組精致的吊柜,將廚房的空間非常好的利用起來,能夠提供非常好的儲物收納能力,也極大地拓寬了操作臺的面積,使得廚房顯得更加整齊大方。

整個餐廳的裝修非常小清新,室內墻壁上采用淺綠色的格調,放置了大圓桌,在餐桌上可以擺放一些鮮花點綴,與家人用餐感覺更加溫馨浪漫。
臥室
生活從來不只是想象,設計一種生活方式,比所謂的風格更重要。主臥的設計以白色為主要色調,墻面嵌入的柜子與背景墻融為一體,在簡單大方實用的同時又凸顯高級,再配上一個大飄窗,呈現了剔除一切繁瑣的設計元素,給人一種想要在上面聊天,吃東西,看電影,擼貓的感覺,體現臥室的清新與寧靜。



