紅星天鉑裝修案例:輕奢有度、浪漫剛好
現代輕奢,是浪漫主義寫給現實家居生活的座右銘;少即是多,是對生活方式的逆向推理,也是對設計新一輪的審視,將美好融入設計,將浪漫寫進生活。
接下來為大家分享的是整體質感強烈,奢華不世俗,沉穩而又不張揚的現代輕奢風格裝修案例。
裝修樓盤:紅星天鉑
裝修設計:金芒果裝飾
設計風格:現代輕奢風格
住宅面積:117m²
設計師: 張正川
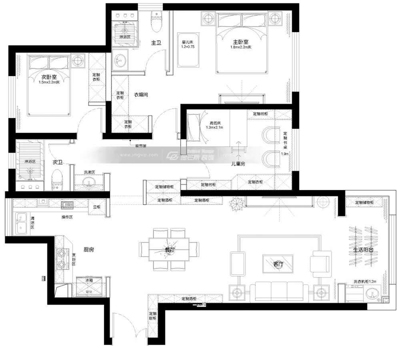
原始戶型圖:
優點:結構穩定,區域劃分合理,動靜分明;房間的采光及通風都很好。
缺點:廚房和生活陽臺空間過小;入戶即過道,且過道空間浪費過大。

原始戶型圖
設計師改造后:
為了給業主帶來更加舒適便利的居住體驗,改動如下:
1. 將廚房與生活陽臺打通,開放式廚房的設計,動線更流暢。
2.過道上設計定制酒柜,彌補了過道空間浪費的問題又兼顧收納和展示功能。

平面布局圖
客廳
大面積的白色帶走的是瑣碎,留下的是平靜與安寧;就像是一杯牛奶咖啡,沖淡生活的苦澀,在午后陽光里飄起淡淡的香氣。沙發背景墻多種材質組合,層次感豐富,展現個性和藝術之美。灰白的沙發和整體空間格調相協調,營造寧靜、平和的氛圍。

客廳裝修效果圖(1)
電視背景墻一整面的石材簡潔、大氣,黑白的搭配加上輔助光源的加持,讓家居氛圍更顯溫馨;裝飾柜的設計使客廳與墻面層次分明且兼顧收納和展示功能。

客廳裝修效果圖(2)
餐廳
綠色的餐座椅和鐵藝搭配,既和客廳相呼應,也是精致、優雅、神秘魅力的展現;餐廳的溫度是一個家的溫度,餐廳與客廳風格協調融合,給精致的用餐空間許一份生活的美好。

餐廳裝修效果圖(1)
餐邊柜實用性與裝飾性兼具,餐邊柜的加入讓空間不會過于單調,簡潔明亮不失品質的同時還增加了一些生活氣息,也營造出一種時尚感。

餐廳裝修效果圖(2)
臥室
臥室作為每天生活中的加油站,最注重的是舒適。置身其中,你會發現區別于過去的奢華設計,整個空間既沒有過于繁復的造型,亦沒有豐富色彩的疊加,而是以一種直撩心底的優雅魔力,給人帶來輕松舒適、溫馨大氣的感覺。純凈、簡潔的空間,溫潤的背景墻和地板營造舒適的氛圍;床頭背景墻的掛飾讓整體空間更加文藝、有趣、有氣質,不顯單調,在細節之處彰顯高級感。

主臥裝修效果圖
與其說,輕奢是一種風格,不如說,它是一種極致優雅的生活態度。
不惹眼,不浮夸,卻讓追求生活品位的人士,在不經意中獲得極具質感的生活享受,這就是現代輕奢氣質的最佳演繹。
金芒果裝飾
遇見您的理想之家,
將生活融入設計,讓設計感知生活。
以上就是小編今天為大家分享的案例,如果還想了解更多可以聯系小編18214613930(微信同號),期待您的來電與咨詢喔,讓我們下期再見!


