117m2紅星天鉑現代輕奢裝修丨快節奏生活的“漫”享受
現代輕奢,
是浪漫主義寫給現實家居生活的座右銘。
減掉無畏的裝飾,刪去無趣的平庸,
將精致與浪漫變成平淡時光里的領銜主演,
將每一個細水長流的日子變得香醇、醉人。

每個家都有自己的風格,
唯一不變的是追求心靈的歸屬。
個性化定制的現代輕奢設計,
利落清爽的現代化線條,
縱橫之間的寥寥數筆,
書寫幸福舒適的品質生活。
案例分享
裝修樓盤:紅星天鉑
裝修設計:金芒果裝飾
住宅面積:117m²
裝修風格:現代輕奢風格
設計師:張正川

設計理念: 該案例為現代輕奢風格,配色以經典色為主,讓空間永不過時,通過簡單的手法,將一些高端精致的元素運用在空間中,給人一種低調的奢華感。
摒棄了復雜繁瑣的設計,更多的是注重實用的簡約美,以及內在的舒適性。
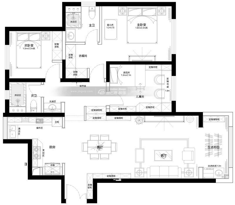
關于戶型

改造前

改造后
原始戶型面臨的問題主要有兩點,生活陽臺和廚房過小,日常晾曬不方便,廚房利用率也不高;入門即過道,且過道空間浪費過大。
為了給屋主帶來更加舒適便利的居住體驗,設計師將廚房和生活陽臺打通,設置了開放式廚房,提高二者利用率,動線更流暢。在原本過道浪費的位置設計定制酒柜,彌補了過道空間浪費的問題。
效果賞析
客廳

純凈,細膩,優雅,大面積的白色帶走的是瑣碎,留下的是平和與安寧。就像是一杯牛奶咖啡,沖淡生活的苦澀,在午后陽光里飄起淡淡的香氣。
拋卻繁瑣的裝飾,把更多的空間留給生活,通過簡約卻不簡單的軟裝搭配,書寫出精致的小資生活情調。

沙發背景墻多種材質組合,層次感豐富,展現個性和藝術之美。灰白的沙發和整體空間格調相協調,營造寧靜、平和的氛圍。點綴綠色和粉色顏色鮮亮的家具,增加優雅、靚麗的感覺。
鐵藝和石材組合的茶幾,石材的沉穩和鐵藝的時尚綜合起來,多了些輕奢的味道。

電視背景墻一整面的石材簡潔、大氣,黑白的搭配加上輔助光源的加持,讓家居氛圍更顯溫馨。
餐廳
寬闊的餐桌椅和餐邊柜可同時容納多人就餐,承載下一家人的幸福時刻。餐廳的溫度也是一個家的溫度,餐廳與客廳風格協調融合,精致的用餐空間許一份生活的美好。
綠色的餐座椅和鐵藝搭配,既和客廳相呼應,也是精致、優雅、神秘魅力的展現。

餐邊柜實用性與裝飾性兼具,餐邊柜的加入讓空間不會過于單調,增加了一些生活氣息,同時也為營造時尚性增色不少。

臥室

純凈、簡潔的空間,溫潤的沙發背景墻和地板營造適合舒睡的氛圍。床頭背景墻的掛飾讓整體空間更加文藝、有趣、有氣質,不顯單調,在細節之處彰顯高級感?,F代輕奢,


