實景案例賞析丨我能想到最浪漫的事,是和你一起賞歲月靜好
周末的下午,
陽光懶懶的灑在窗臺上,
我看著窗外靜靜發呆,
轉過頭,你手捧書卷,
微風掃過書角,帶起些微的褶皺,
你白皙且骨節分明的手指輕輕壓住,
微風吹起身后白色的紗簾,
你抬起頭,微笑的看著我,
我知道,這就是歲月靜好的模樣。
▲ 裝修樓盤:河畔俊園
裝修設計:金芒果裝飾
設計風格:北歐風格
住宅面積:118m²
設計師:蘇海龍

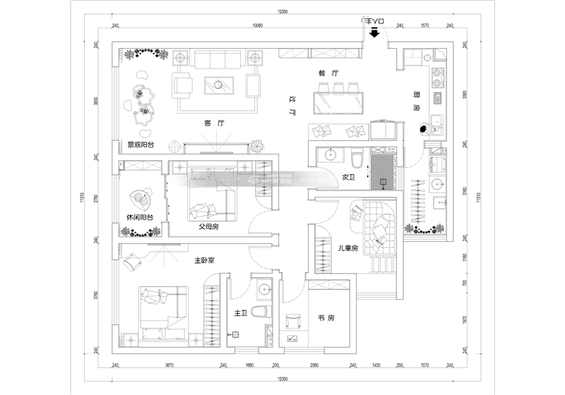
▲ 戶型圖

▲ 設計說明:
本套案例是一套北歐風格的裝修,主要是夫妻倆人在居住。業主夫妻平時在文山忙于工作,只有在周末的時候才有時間回昆明享受獨屬于二人的愜意時光。
因為平時工作比較累,業主希望在家里的時候可以簡潔大方一點,讓自己放下繁雜,靜享愜意生活。

▲ 設計理念:
北歐風格的特點是回歸自然、回歸本真。業主工作壓力大,我希望通過這樣的裝修,可以讓業主回到家,就可以放下外面的繁雜喧囂,身心能得到全然的釋放。
另外,這套房子是夫妻兩人的二人世界,選用了大量靚麗的色彩,比如說黃色的沙發背景墻,這樣柔和的色彩能起到讓人放松的作用,也能讓整個房間看起來更加溫馨、明媚一些,就像愛情溫暖、美好的模樣。
客廳


整體空間是柔柔的暖黃色系,沒有繁復的裝飾,但是卻簡單而溫馨。淺色系木地板使整個空間更顯通透,沙發背景裝飾畫豐富空間層次,靈動而不呆板。
布藝沙發坐感舒適,灰色既顯高級,又容易打理。周末的時候,兩個人窩在上面,看上一場自己喜歡的電影,愜意美好。


糖果色的窗簾,吹進來的風都是甜的。

用明黃色的柜體區塊來中和淺色系,有主有次,有輕有重
廚房

很居家的廚房,淺色系溫馨、干凈的空間。吊柜增加大量收納空間,黃色格子和客廳呼應,這樣的設計,讓房間隨處可見明艷的顏色,空間也變得生動、有趣起來了。
餐廳

糖果色的配色加上玩偶的加持,生活不只有詩和遠方,眼前的柴米油鹽也該有些可愛的顏色。

過道設計讓空間動靜分明,空間主次有序。
臥室

暖暖的色調,安靜柔和,營造溫暖、明亮的就寢空間,一起床就可以擁有好心情。不規則柜體設計,中和房間的單調和呆板。

窗外是陽臺和綠植,充滿生機與活力,早上起來,呼吸一些新鮮空氣,伸個懶腰。靜靜享受這蘊藏在生活中的平淡與美好。

這套房子夫妻兩人預留了一間兒童房,嫩綠、嫩黃是和整個空間格調相協調的,也保留小孩子純真、可愛的童真。墻紙選用也是有卡通圖案的,充滿童趣。上下床節省空間且很實用。


