港式現代風——尋覓 · 記憶里的流金歲月
香港,
被稱作東方之珠的國際化大都市,
呈現了東方與西方、傳統與現代、
市井與摩登碰撞交融的獨特文化景觀,
彈丸之地每天都在上演著人間萬象。
獨特而有魅力的香港文化,
電影、歌曲、美食……
承載了一代人的青春回憶,
也沉淀下了歲月的柔情與優雅。
港式裝修,
總是不免讓人想起
那個閃閃發光和風情萬種的城市,
將懷舊的港式情懷,
獨特的港式魅力,
融入到現代裝修當中,
盡情展現獨屬于
那個流金歲月的浪漫與韻味。
案例賞析/港式現代風格
建筑小區:中央麗城
建筑面積:390m²
設計師:劉元鋒
從業年限:14年
設計理念:室內設計的目的就在于創造滿足人們物質和精神生活需要的室內環境。從受用的角度,到超載的發揮,構成藝術的主體!
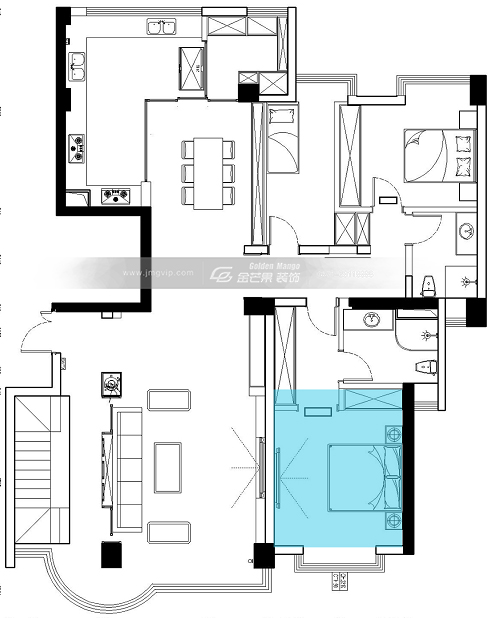
戶型圖

客廳

大量金屬色、金屬線條的運用,打造奢華的高級感。淺色為主,棕色為輔的色調,浪漫又優雅,高級又氣質,不免讓人聯想起港式電影里光線昏黃的鏡頭,光影閃爍間,韻味盡顯。

寬闊而不空曠的客廳空間,挑高的電視背景墻設計,隨性又自由。石材和金色鐵藝結合的茶幾,輕松打造奢華高級感。非常具有設計感的客廳大吊燈,如夢似幻,優雅大氣。


藝術品的陳設畫龍點睛,是家居的藝術,也是生活的藝術。
餐廳

棕色的玻璃柜體呈現低調的華貴感,恰到好處的奢華與現代感十足的氛圍,與香港國際大都市的時尚氣質不謀而合。精致的餐具和餐桌椅,營造滿滿儀式感。

用心的設計在細節處多有體現,每一次不經意的轉角,都藏著驚喜。
吧臺

金屬質地的吧臺椅呼應整體空間,墻上的寫意裝飾畫簡而不減,奢而不膩。個性的酒柜設計,讓人忍不住將視線聚集在此,空間的豐富層次感在此得以呈現。
休閑區

黑與白,繁與簡,色彩和紋理在此搭配碰撞,恰如生活的千滋百味,在變幻之中找到生活的真諦。
臥室

簡單,舒適,釋放身心的空間,區別于客餐廳棕色流金色調的營造,臥室以溫柔沉穩的白色調為主。銀色的線條精美氣質,營造輕奢感。純色的床具在光線照射下呈現如水般流動的絲滑感,奢華而不煩膩,貴氣而不張揚。簡潔的床頭背景墻一抹清新的藍色,成為了臥室中的亮點,溫潤彰顯,氣質有余。
臥室


不是簡單的色塊拼湊,每一處的設計搭配都恰到好處,彰顯主人不隨意、不敷衍的生活態度。不對稱的床頭燈設計,靈動性十足。


