【幸福金芒果】昆明華夏四季143㎡,游走在舒適與質感間!
項目地址:昆明華夏四季小區
項目面積:143㎡
項目風格:現代極簡
設計單位:昆明幸福金芒果裝飾
大家應該聽說過“斷舍離”吧,它是時下熱興的一種生活方式,簡單的理解也就是在物質上做減法,把沒用的、不必要的東西定期清理扔掉,只保留有用的必須的東西。這樣的生活方式也體現在我們的家居設計中,比如現代極簡風格就是對“斷舍離”的一種表現,那就讓我們一起來看看華夏四季的這套極簡風是什么樣的吧!
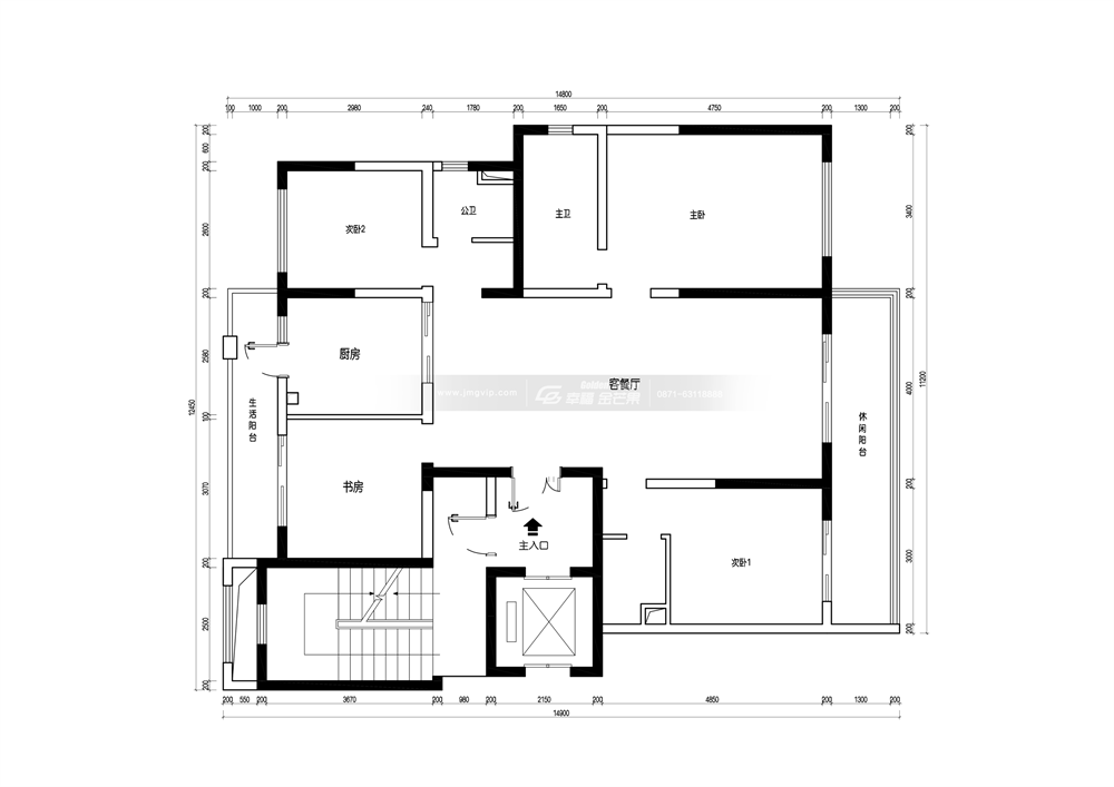
原始戶型圖

平面布置圖

分析:
1、房屋構造為四室二廳一廚二衛二陽臺,優點是戶型方正,整體采光、通風比較好,但缺點是不能封陽臺;
2、拆除廚房原有推拉門及墻體后,有效擴大了廚房、餐廳的面積,令廚房、餐廳、客廳整體空間更加通透;
3、主臥空間做了定制衣柜,滿足大量儲物需求,并設計了獨立衛生間,使業主擁有豪華套房體驗。
客廳

無主燈設計,搭配磁吸軌道燈,整個室內空間高級簡約又通透。原木色與白色搭配帶來清爽潔凈的視覺體驗,打造出舒適靈動卻不失力量的溫暖氣場。

客廳無電視化符合當下年輕人居家新理念,打破傳統客廳布局,選擇用投影代替電視機,舒適至上,而且投影屏幕也更大,觀影效果更佳!
餐廳

餐廳延續客廳風格,以原木色與白色為主,色彩簡約、干凈明快。用簡單的線條和搭配創造出讓人身心放松的畫面,在這里享受美食帶來的治愈。
廚房

白色極簡廚房不僅顯得空間通透而且不容易過時,開放式廚房與餐吧臺連在一起,也更加方便下廚者,減少來回走動,使空間具有連貫性!
主臥

定制柜體不僅滿足衣服收納需求,也在結構上劃分了衛浴區與休憩區,空間區域既相連但又各自獨立互不干擾。整個空間沒有過多顏色的修飾,溫馨舒適就是業主追求的理想狀態。
主衛

雙臺盆的浴室柜設計很實用,兩個人即使是同時洗漱也不會擁擠了,有效提高洗漱效率,出門不再手忙腳亂。整個衛生間沒有用多么高大上的元素去裝扮,簡約清爽、輕松自由正是一個空間最純粹的意義所在。
兒童房

大大的落地窗能更好地將自然光線引入兒童房,營造出充滿活力與靈性的空間氛圍。床頭背景墻一輪圓月掛在上方,豐盈而立體,凝練又充滿意境,更好地激發小朋友的想象力與創造力!
以上就是本期小編給大家帶來的華夏四季極簡風的分享啦!這樣的裝修風格傳達著對極簡生活方式的追求,它并不是“空無一物”的極簡,而是斷舍離后少而精美愜意的生活。


