世紀城120㎡現代風格丨把自然藏進家里,我找到了不出門的理由
喜歡一縷清風,想把它留在家里,藏納陽光的溫度,收集花果的清香,于是在森林里種下了一個家。

現代家居承載起時代里的時尚感,將滿眼的原木家具恰到好處的融入其中,在清新綠色的加持下,家變得仿佛會呼吸起來,輕松得外界喧囂全然與自己無關。一起來感受會呼吸的家吧。
案例分享
項目樓盤:官渡區 世紀城
項目面積:120m²
項目風格:現代風格
設計師:李才成
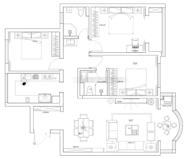
平面布置

平面布置
我未回家,只是在森林里種下了一張沙發。入目無他色,所及皆溫柔,通透的綠色汲取了自然的活力,在斑駁的陽光里書寫著冬夏。
圓潤的弧度讓家居變得溫柔可愛,背景墻設置格柵和臺板,井然有序的敘述著簡單的小美好。

客廳
大理石遇見清新原木,堅硬的石材與細膩的木質,可以獨當一面,也可以無限溫柔。

客廳
柔軟的地毯摩挲著腳掌,可愛的單椅,讓身體有了更多愿意舒展的理由。獨特的門洞造型,燈光照射出柔和的斑駁的光影,一切的暖意和精致都無處藏身。

客廳
餐廳
滋滋作響的水汽,色澤透亮的水果,在宣告著美味時刻的到來,在清新的原木餐桌椅上,吃一頓可口的飯菜,生活再忙,也別忘了心疼自己。

餐廳
廚房
如果沒有鍋碗瓢盆,也許不必費太多心思,但生活是否會少了許多味道。

廚房
書房
滿屋的木香氣混合著書香氣,書頁摩挲的質感和木材的質感相互融合,純凈的顏色,輕薄的紗簾,讓一切都變得簡單,留更多的自己沉浸在書里。

書房

書房
臥室
時光輕輕,風也不燥,溫暖的橘色和木色,為空間注入更多的暖意。柔和的燈光、弧度招來陣陣睡意,安逸、輕柔,讓家無比舒適。

臥室

臥室
上一篇: 現代簡約|海倫國際 下一篇: 江湖海167m2現代風格丨徜徉藍天碧海,縱享開闊心境


