紅星天鉑169m2現代風格實景丨優雅輕奢風,品質感太絕了
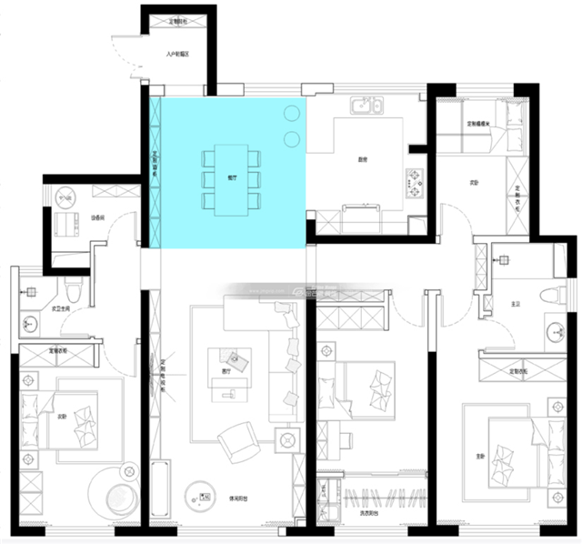
戶型解析

項目樓盤:昆明市 官渡區 紅星天鉑
項目面積:169m²
項目風格:現代輕奢風格
玄關
一幅精致的金屬元素掛畫,將入戶視線聚焦于此,一進門就感受到精致、大氣、輕奢的氛圍。

客廳
整體是輕奢、高級的氛圍,硬包電視背景墻彰顯品質感,不同顏色打造豐富的空間層次。金屬線條營造輕奢的品質,富有造型感的沙發讓空間格調更加高級,整體是靚麗、時尚的家居氛圍。

大理石電視背景墻結合兩邊的燈帶,營造輕奢的品質感,讓背景墻層次更豐富。



金屬線條和精致元素的點綴,讓氣質變得不俗,細節處彰顯屋主的家居品味。




吊頂增加金色線條,隨處可見的輕奢感,豐富的材質讓屋子變得富有內涵、有韻味。



精致的細節,讓家的每一處都成為值得期待的風景。可愛的擺件,讓時尚舒適的家居增加許多趣味。



經典耐看的顏色,展現高級的品質感。灰玻和石材,體現豐富的層次感。

餐廳
大理石臺面搭配品質感餐坐椅,木材和灰玻結合的餐邊柜,在光影之間營造高級氛圍感。通透的玻璃材質讓精致的時尚格調彰顯。

餐邊紅酒柜彰顯品質。



優雅的氣質,輕奢的品質,滿滿的格調感。




廚房
灰色的沉靜氣質,讓廚房空間變得沉靜干凈,亦是舒適的家居品質。


主臥
優雅的香檳色,溫柔感盡顯。明媚的顏色讓臥室充滿溫馨的感覺,心情也變得好起來。



優雅、溫柔的配色,仿佛連空氣也是優雅、清甜、精致的。

次臥
沉靜的灰色和粉色,搭配出溫馨、恬靜的空間氛圍,粉粉嫩嫩的顏色讓臥室變得精致且可愛。個性氣質的空間格調。




兒童房
明亮的藍色加上可可愛愛的地毯,簡單純粹的兒童房空間氛圍。




